Narrow Lot Cottage House Plans - Narrow Lot House Plans : There are several reasons for the growing need for narrow lot house plans.. They're typically found in urban areas and cities where a narrow footprint is needed because there's room to build up or back, but not wide. This concept can be built in a lot with 7 to 8 meters in width and 15 meters in depth, and total area of at least 105 square meters. 2,207 sq ft, 3 bedrooms and 3.5 bathrooms. Choose a narrow lot house plan, with or without a garage, and from many popular architectural styles including modern, northwest, country, transitional and more! Looking for a house plan to fit your narrow lot?

Often built as vacation homes, cottage home plans are more sophisticated than cabins and feature lots of detail, like window boxes, arched. The plans in this collection have a width of 40' or less. Looking for a house plan to fit your narrow lot? They're typically found in urban areas and cities where a narrow footprint is needed because there's room to build up or back, but not wide. When you look for home plans on monster house plans, you have access to hundreds of house plans and layouts built for very exacting specs.

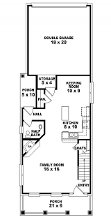
2 Story House Plans For Narrow Lots Blog Builderhouseplans Com
2 Story House Plans For Narrow Lots Blog Builderhouseplans Com from cdn.houseplansservices.com
The collection of narrow lot house plans features designs that are 45 feet or less in a variety of architectural styles and sizes to maximize living space. With land prices continuing to climb. Choose a narrow lot house plan, with or without a garage, and from many popular architectural styles including modern, northwest, country, transitional and more! Narrow lot house plans home design ideas via. The plans in this collection have a width of 40' or less. The perfect home for a narrow lot, this design is only 35'4 wide a bedroom is located on the main level, and a cathedral ceiling over the living room expands the interior space. When you look for home plans on monster house plans, you have access to hundreds of house plans and layouts built for very exacting specs. However, just because these designs aren't as wide as others does not mean they.

The collection of narrow lot house plans features designs that are 45 feet or less in a variety of architectural styles and sizes to maximize living space.

These narrow lot house plans are designs that measure 45 feet or less in width. Raise your family in this beautiful coastal cottage. Looking for a house plan to fit your narrow lot? Spectacular narrow houses their ingenious design. Plans for narrow lots ideas from our architect |* ideal narrow lots house plans. Simple and small houses are becoming more popular for low cost small lots. There are several reasons for the growing need for narrow lot house plans. Narrow house plans are designed to fit a narrow lot. 2,207 sq ft, 3 bedrooms and 3.5 bathrooms. Featured today is a design from sam architect, with 4 bedrooms and roof deck. Often built as vacation homes, cottage home plans are more sophisticated than cabins and feature lots of detail, like window boxes, arched. Browse our large selection of house plans to find your dream home. These blueprints by leading designers turn the restrictions of a narrow lot (and sometimes small square footage) into an architectural plus by utilizing the space in imaginative ways.

The collection of narrow lot house plans features designs that are 45 feet or less in a variety of architectural styles and sizes to maximize living space. There are several reasons for the growing need for narrow lot house plans. Australian floor plans & home designs. Narrow lot house plan is the answer if you have a lot with only 7 to 8 meters in width. Free ground shipping available to the united states and canada.

Narrow Lot Cottage House Plans One Story House Plans 114233
Narrow Lot Cottage House Plans One Story House Plans 114233 from cdn.jhmrad.com
A large metropolitan area where houses are built close together illustrates this point. Simple and small houses are becoming more popular for low cost small lots. These slim designs range in style from simple craftsman bungalows to charming cottages and even. These narrow lot house plans are designs that measure 45 feet or less in width. The perfect home for a narrow lot, this design is only 35'4 wide a bedroom is located on the main level, and a cathedral ceiling over the living room expands the interior space. Narrow lot house plans, floor plans & designs. Narrow house plans are designed to fit a narrow lot. These blueprints by leading designers turn the restrictions of a narrow lot (and sometimes small square footage) into an architectural plus by utilizing the space in imaginative ways.

Narrow lot house plans are perfect for urban infill lots and designed to maximize the space and efficiency.

2,207 sq ft, 3 bedrooms and 3.5 bathrooms. Narrow house plans are designed to fit a narrow lot. Browse narrow lot house plans with photos. Often built as vacation homes, cottage home plans are more sophisticated than cabins and feature lots of detail, like window boxes, arched. If you have a small or narrow lot, we have just the house plans for you. A large metropolitan area where houses are built close together illustrates this point. Bruinier & associates has quality, detailed narrow lot house plans and small or tiny homes floor plans, contact us here to view our home building plans. Thoughtful designers have learned that a narrow lot does not require compromise, but allows for creative design solutions. Narrow lot house plans, cottage plans and vacation house plans. The collection of narrow lot house plans features designs that are 45 feet or less in a variety of architectural styles and sizes to maximize living space. Your lot may be wider than that, but remember that local codes and ordinances limit the width of your new home, requiring a setback (from the property line) of a certain number of. While the exact definition of a narrow lot varies from place to place, many of the house plan designs in this collection measure 50 feet or less in width. House plans narrow lots waterfront cottage.

Narrow lot house plans (or house plans for narrow lots) may be more affordable to build due to the smaller lot. Narrow lot house plan is the answer if you have a lot with only 7 to 8 meters in width. Thoughtful designers have learned that a narrow lot does not require compromise, but allows for creative design solutions. Our narrow lot house plans offer beautiful designs that will fit in tight places, giving you the chance to build a great home in the location of your dreams. Finding a house plan for a narrow lot can be challenging whether you're building in a densely developed urban area or as an infill in an established our collection of narrow lot home plans are 18' to 30' wide.

Affordable Home Plans Designed For Your Narrow Lot Dfd House Plans
Affordable Home Plans Designed For Your Narrow Lot Dfd House Plans from cdn-5.urmy.net
Narrow lot house plans & designs for builders. However, just because these designs aren't as wide as others does not mean they. With land prices continuing to climb. Narrow lot house plans, cottage plans and vacation house plans. The plans in this collection have a width of 40' or less. Browse our large selection of house plans to find your dream home. A large metropolitan area where houses are built close together illustrates this point. Our narrow lot house plans are designed to maximize the limited space without sacrificing other modern qualities you desire in your luxury home.

Narrow lot floor plans are great for builders and developers maximizing living space on small lots.

Find a house plan that fits your narrow lot here. Browse narrow lot house plans with photos. Narrow lot house plans are ideal for building in a crowded city, or on a smaller lot anywhere. Affordable house plans & duplex designs plus low cost kit homes. The plans in this collection have a width of 40' or less. Most popular square feet (large to small) square feet (small to large) recently sold newest. Looking for a house plan to fit your narrow lot? Our narrow lot house plans are designed to maximize the limited space without sacrificing other modern qualities you desire in your luxury home. Raise your family in this beautiful coastal cottage. 2,207 sq ft, 3 bedrooms and 3.5 bathrooms. Australian floor plans & home designs. Bruinier & associates has quality, detailed narrow lot house plans and small or tiny homes floor plans, contact us here to view our home building plans. Your lot may be wider than that, but remember that local codes and ordinances limit the width of your new home, requiring a setback (from the property line) of a certain number of.

By